

INAURA BY ARADA
LOCATED IN DOWNTOWN DUBAI, 18 MINUTES FROM TILAL BINGHATTI
Uber luxury Inaura by Arada has been announced in Downtown Dubai on 13th January 2026, following the success of Arada Masaar 3. Floor plans in this tower shall cater one, two, three and 4 bedroom apartments including five and 6 bedroom penthouses. Model for this project is now available to view and office is open for visits
Prices start from AED 3,599,000 dirhams (USD 979.9K). Submit your Expression of Interest (EOI) to access plans and secure early bid offers.
| UNIT TYPE | SALE AREA -SQFT | PRICE -AED |
|---|---|---|
| 1 BED BUILDING VIEW | 705 – 834 | 3.59 – 4.19M |
| 1 BED BUSINESS BAY VIEW | 1,272 – 1,306 | 6.39 – 6.69M |
| 2 BED BUILDING VIEW | 1,344 – 1,685 | 6.66 – 8.22M |
| 2 BED BUSINESS BAY VIEW | 1,363 – 1,508 | 7.33 – 8.15M |
| 3 BED BURJ KHALIFA VIEW | 2,874 – 2937 | 14.6 – 15.3M |
| 4 BED BURJ KHALIFA VIEW | 4,034 – 4,667 | 20.7 – 23.9M |
| 5 BED BURJ KHALIFA VIEW | 6,781 – 7,449 | 41.0 – 45.0M |
| 6 BED BURJ KHALIFA VIEW | 17,770 | 130M |

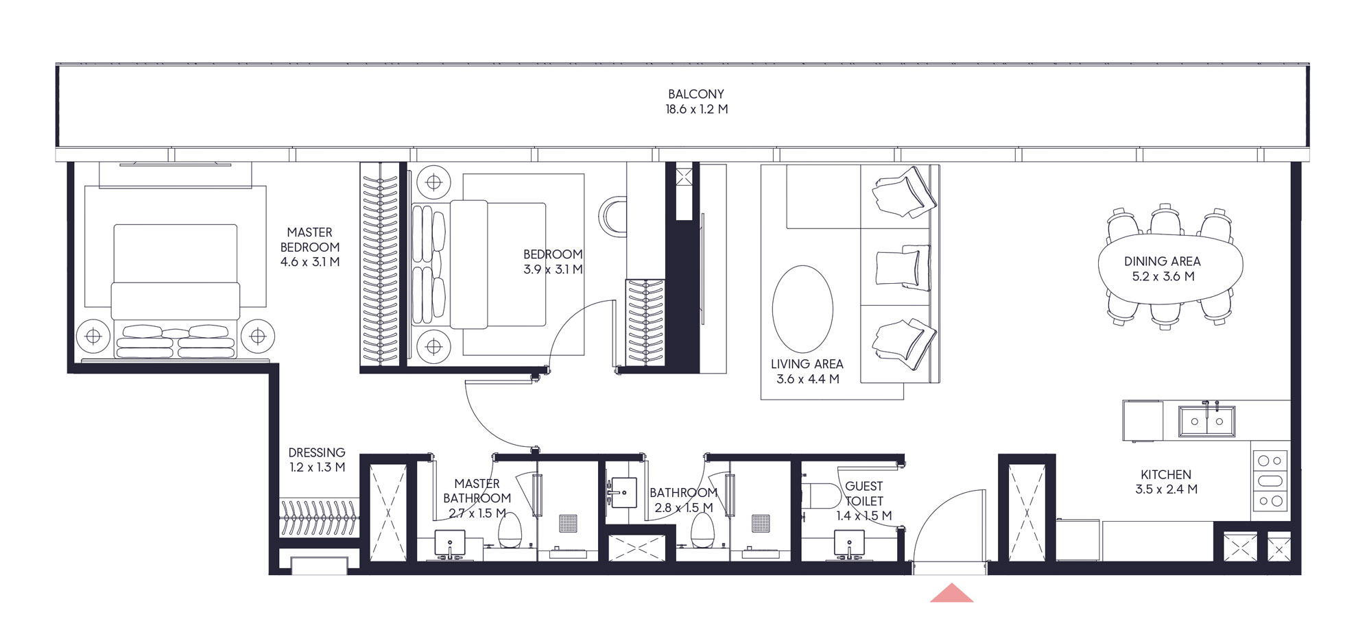
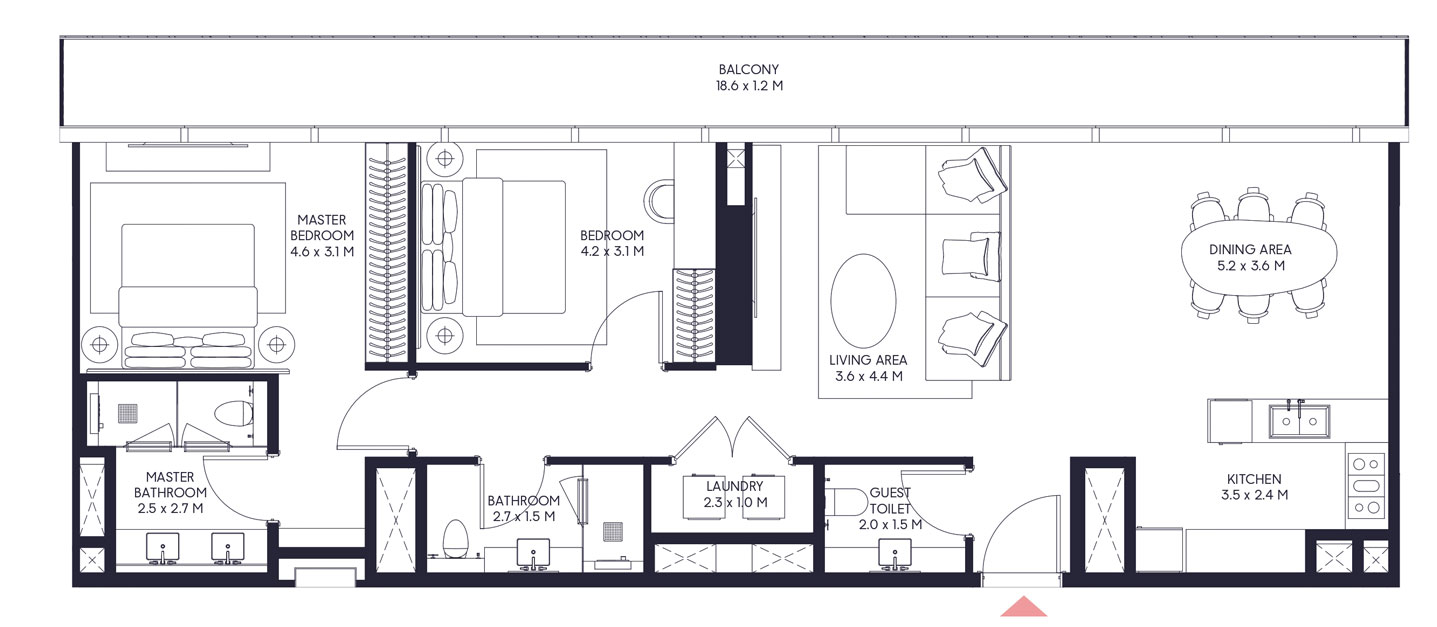
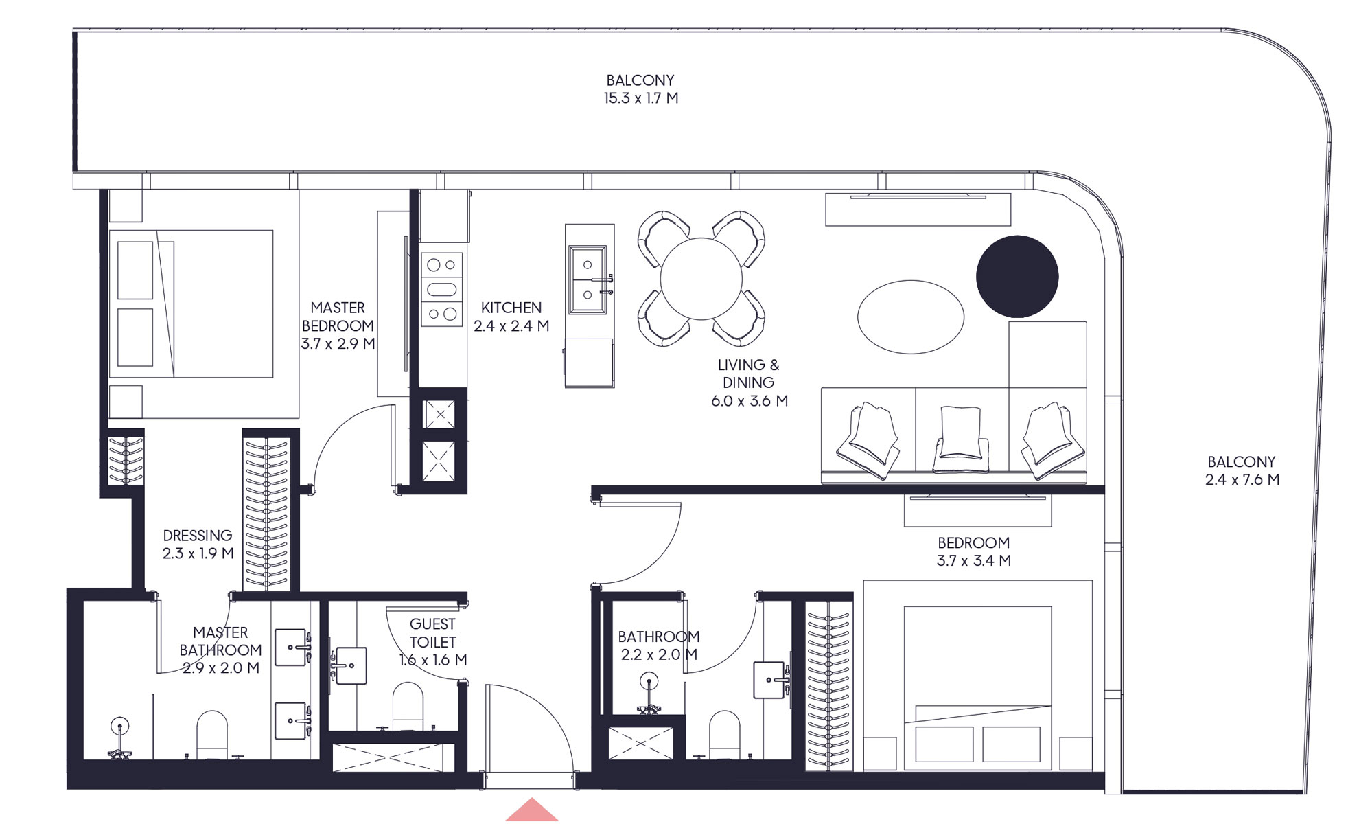
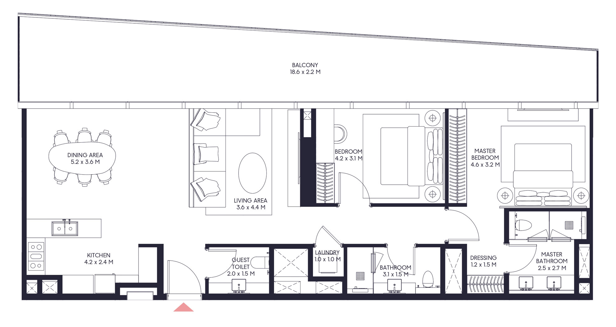
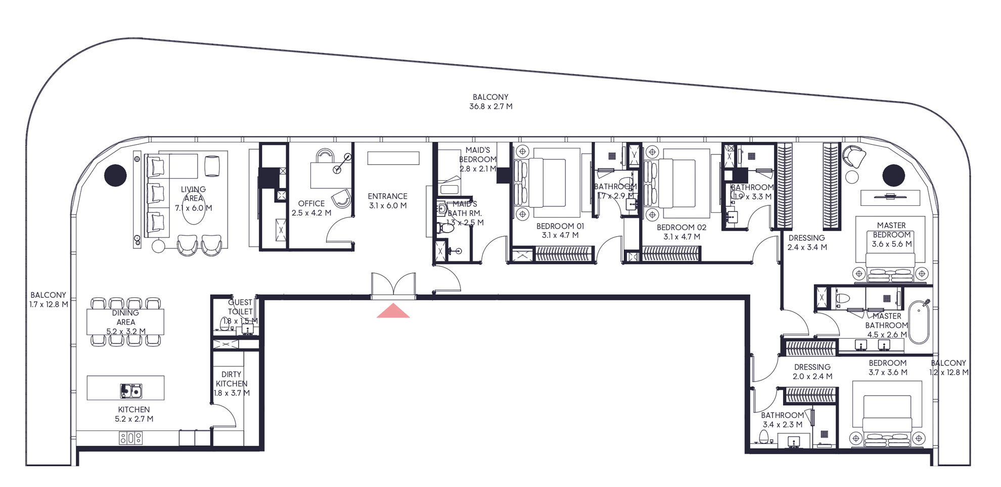
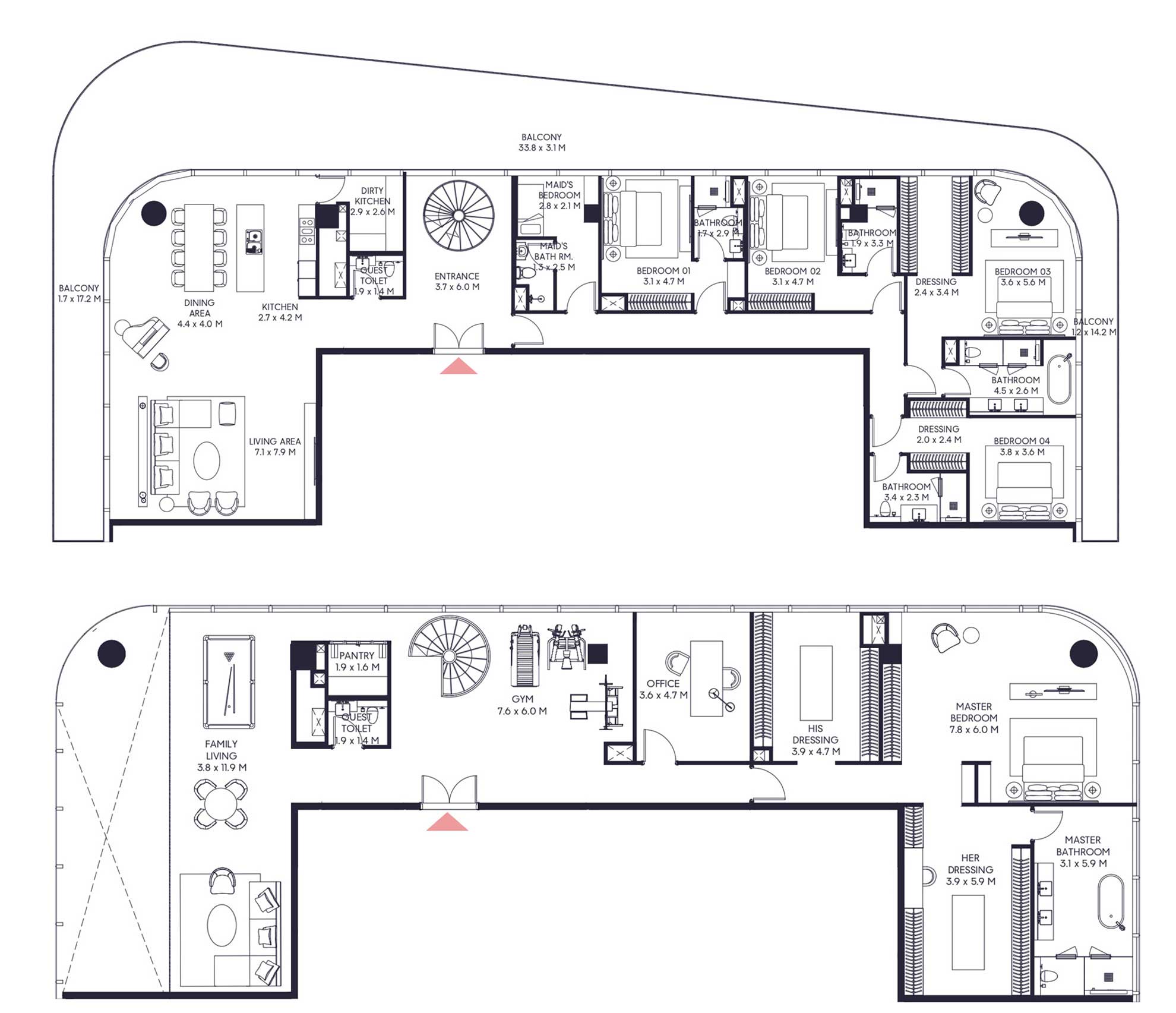
Inside inaura floorplan
Homes feature clean, flexible floorplans that shift easily from private to social living. Balconies extend interiors toward Downtown Dubai views while preserving privacy. Living areas are open and light-filled, with integrated wellness spaces, sky terraces and suites. The Sky Penthouse offers the most expansive and private layout. Level 1 is a shared terrace floor with pool, gardens and open lounges for work or relaxation.
Above, a dedicated wellness level includes fitness, recovery pools, sauna and steam rooms. Level 32 crowns the building with a sky lounge and dining space that overlooks downtown.

Your perfect find
Set in the heart of Downtown Dubai, Arada Inaura places you at the city's most connected address, where iconic landmarks and everyday convenience meet. Just 5 minutes from Burj Khalifa and 5 minutes from the Museum of the Future, 30 minutes to Sobha Sanctuary, you're moments away from global symbols of innovation and culture.
Surrounded by Dubai Mall, Dubai Opera, DIFC, and with seamless access to Sheikh Zayed Road, this location offers unmatched connectivity.
a vertical living into the future
THE STATE OF ART AMENITIES
Experience Inaura, where everyday living is charged with energy and imagination. From relaxed mornings to vibrant nights, residents enjoy a dynamic mix of spaces designed to connect, create, and unwind. Gather with friends at the all day dining lounge, collaborate in stylish meeting rooms and co-working spaces, or host movie nights in the private cinema. Stay active and inspired across a full spectrum of wellness and movement studios, from gym sessions, yoga, Pilates, grit, dance, and boxing to immersive sound therapy and recovery experiences. Unwind in the bathhouse with hot, cold, and mineral pools, cryotherapy, sauna and steam rooms, or retreat to serene treatment rooms. Add to that an outdoor pool, podcast recording studio, and a dedicated kids' area, and Inaura becomes a playground for modern living, where fun, balance, and wellbeing flow effortlessly through every day.
Temperature Controlled
Infinty Pool
Clubhouse
World Class Amenities
Sports Courts
Olympic Perfection
Kids Play Area
Spread in multiple numbers



















